
Restructuration de logements en un

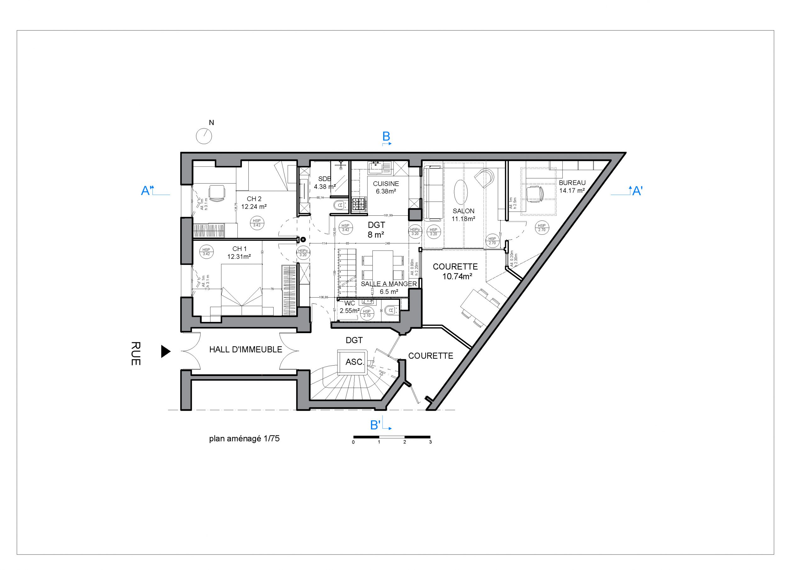
Ce projet a pour but de restructurer plusieurs lots d’appartements qui se trouvent en rez-de-chaussée en un seul appartement qui comporte un bureau et un travail sur l’interstice avec un espace cour, selon un profil client personnalisé.
Le client est un professeur dans le cinéma et l’audiovisuel qui enseigne aux élèves l’histoire du cinéma à la Sorbonne-Nouvelle et il a une femme et une petite fille. Le concept de ce logement part donc de l’origine du cinéma, la pellicule avec ses séquences d’images qui racontent une histoire, en lien avec la profession du client. Les séquences vont se traduire par la séquence d’espace intime, la séquence d’espace technique, la séquence d’espace collectif et la séquence espace de travail. L’ensemble de ces séquences va raconter l’histoire d’une vie de famille. Cela se retranscrit par le mobilier et les séparations par les formes orthogonales et les répétitions.





Chambre étudiante

Le projet a pour but de concevoir l’aménagement intérieur d’une chambre d’étudiant, en proposant un aménagement de l’espace, avec du mobilier correspondant aux fonctions : dormir, travailler, manger. Cet aménagement s’est fait à partir d’un profil que j’ai créé.
Ici, le client est un étudiant d’une vingtaine d’année qui fait des études dans l’informatique en alternance, qui alterne donc entre entreprise et école, et a comme passion la guitare, notamment électrique. Dans cet aménagement, je vais jouer avec la lumière pour faire en sorte d’avoir le plus d’apport possible, tout en délimitant les différents espaces.

